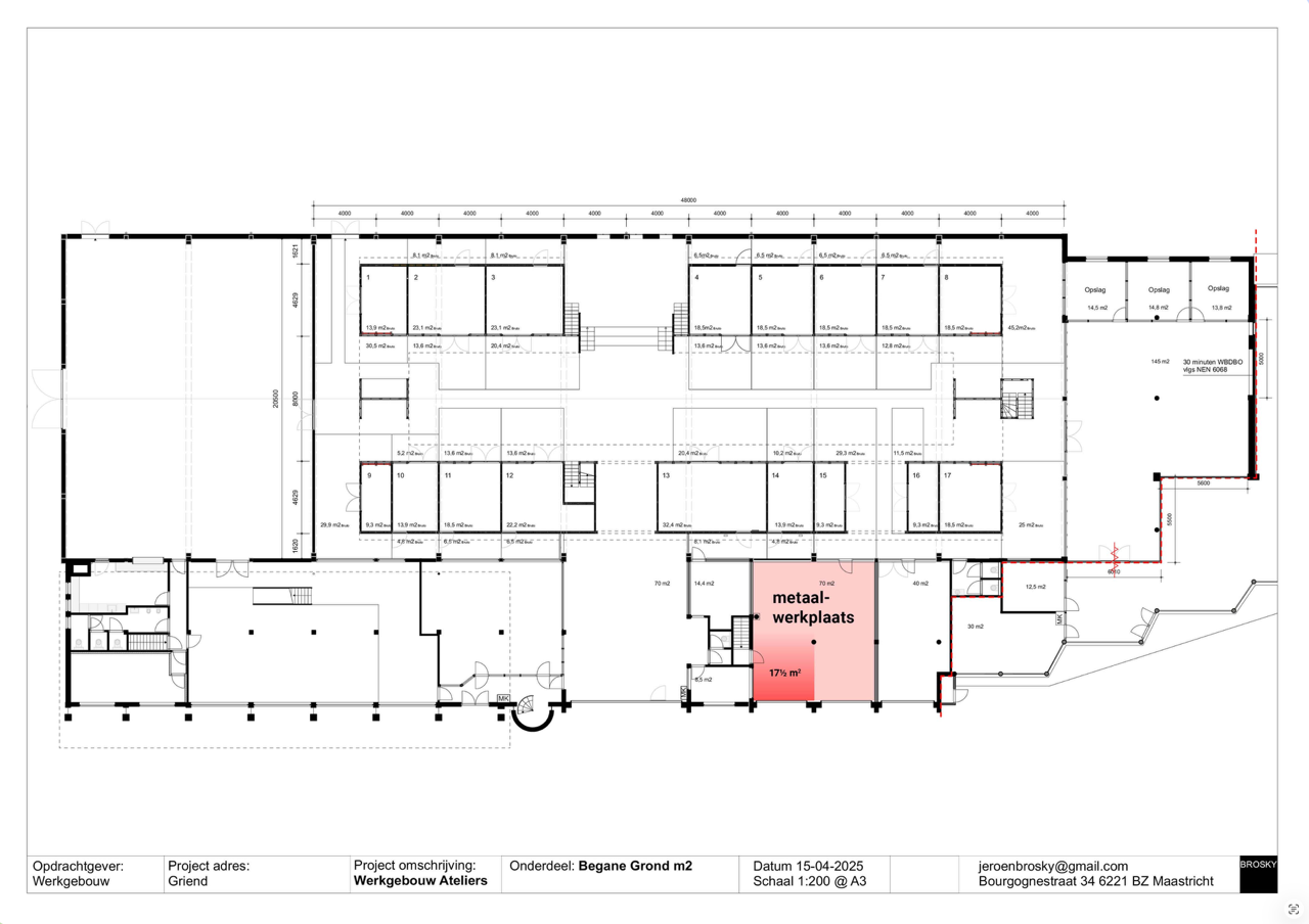
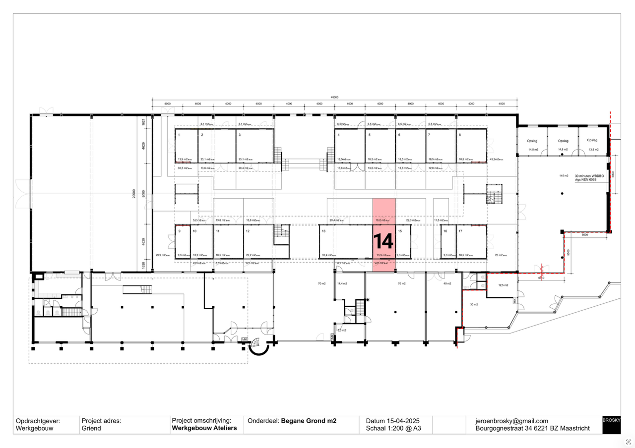
atelier 14
13,9 m2  + 14,9 m2
metaalwerkplaats
17,5 m2
374,58 excl. btw

Atelier 14

Een unieke combinatie van atelier en metaalwerkplaats! Het atelier ligt op de begane grond, in het midden aan de voorkant (straat-zijde) van het gebouw.  Achter de binnenruimte heb je plek om spullen op te slaan die je minder zichtbaar wil hebben. Aan de voorkant heb je veel ruimte in de centrale hal voor als je bijvoorbeeld aan een groter object wil werken of als je graag zicht hebt op de andere Werkgebouwers. Deze werkplek ligt vlak bij de metaalwerkplaats die je deelt met één metaalbewerker. Je hebt daar 17.5 m2 van de metaalwerkplaats tot jouw beschikking.
 
 
Privacyoverzicht

Deze site maakt gebruik van cookies, zodat wij u de best mogelijke gebruikerservaring kunnen bieden. Cookie-informatie wordt opgeslagen in uw browser en voert functies uit zoals het herkennen wanneer u terugkeert naar onze site en helpt ons team om te begrijpen welke delen van de site u het meest interessant en nuttig vindt.